《永欣新寓安置房三期项目规划设计方案》
公示时间:2021年05月19 日至2021年05月28日
编 号:江宁规管方案批前公示(2021)第 033号
批前公示旨在征询公众意见,并非最终审批结果。如您对该规划项目有意见表达,请在公示期内将书面意见邮寄、电子邮件或者传真至南京市规划和自然资源局江宁分局(请注明“公示反馈意见”),公众意见将作为审批决策的重要参考依据。
地址:南京市江宁区双龙大道1200号 邮编:211100
邮箱:jnghxf@126.com 传真:025-52126650
一、项目概况
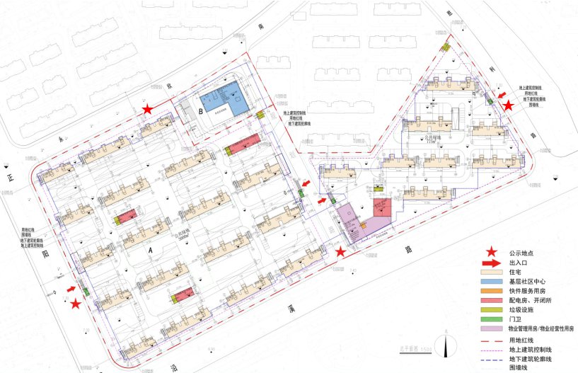
永欣新寓安置房三期项目位于南京市江宁区禄口街道永欣南路以南、正阳路以东,由A、B两幅地块组成,总用地面积约135.16亩,其中A分区用地面积约126.92亩,规划用地性质为R2二类居住用地,相关经济技术控制指标为容积率1.0<R≤1.3,建筑高度≤35(m),建筑密度≤25%,绿地率≥35%;B分区用地面积约8.23亩,规划用地性质为Rc基层社区中心用地,相关经济技术控制指标为容积率R≤1.3,建筑高度≤24(m),建筑密度≤40%,绿地率≥25%。
目前项目单位已完成了该项目规划设计方案,A分区规划18栋小高层住宅、8栋多层住宅及相关配套设施,B分区规划1栋基层社区中心,项目总建筑面积约18.4万平方米,其中地上建筑面积约11.37万平方米,地下建筑面积约7.03万平方米。经核,地块相关经济技术指标均符合规划条件要求,同时规划建筑间距、退让及配套停车等均符合相关规范要求。
二、建设单位
南京空港枢纽经济区投资发展有限公司
三、公示方式
项目建设现场 《南京日报》
政府网站:http://www.jiangning.gov.cn(通知公告栏目里)
四、项目区位图
五、总平面示意图
六、效果图
七、设计单位资质
设计单位:江苏苏邑设计集团有限公司
设计资质:建筑行业(建筑工程)甲级
