丰台区晟泽嘉园共有产权住房项目申购登记公告
北京懋源新鸿房地产开发有限公司开发建设的丰台区晟泽嘉园共有产权住房项目,现开放申购登记,登记时间为2022年9月8日10:00至2022年9月30日17:00。
一、项目基本情况
丰台区晟泽嘉园共有产权住房项目位于北京市丰台区卢沟桥乡周庄子村,东临规划七里庄中街;南临规划七里庄路;西临规划丰台站北路;北临丰华苑西街8号院。
项目规划总建筑面积约5.2万平方米,其中地上建筑面积约2.7万平方米,共有产权住房住宅建筑面积约2.6万平方米,共4栋住宅楼,项目住宅总套数319套。其中,二居室111套,建筑面积约78-80平方米;三居室208套,建筑面积约88-89平方米。含全装修费用销售均价43000元/平方米(根据具体楼层、朝向在±5%的范围内调整销售价格)。
二、共有份额比例确定
根据《北京市共有产权住房管理暂行办法》(京建法〔2017〕16号)相关规定,该项目产权份额的确定情况如下:
(一)共有份额比例确定原则
该项目的房屋产权由购房人与政府按份共有,确定原则按照《北京市共有产权住房管理暂行办法》(京建法〔2017〕16号)第十八、十九条执行,其中政府产权份额由北京市丰台区保障性住房发展有限公司持有。
(二)共有份额比例评估及确定结果
该项目申购前,北京市丰台区保障性住房发展有限公司已经委托房地产评估机构完成对购房人与政府共有份额比例的评估,根据《北京市共有产权住房管理暂行办法》(京建法〔2017〕16号)及评估报告,该项目单套住房的购房人产权份额比例为70%,北京市丰台区保障性住房发展有限公司(政府产权份额代持机构)持有剩余30%份额。
(三)购房款计算方式
购房人的购房总价款=销售价格×房屋建筑面积。以本项目为例:若申购家庭选择了一套建筑面积为80㎡,销售价格为43000元/㎡的房屋,则该家庭应支付的购房款为80㎡×43000元/㎡=3440000元,该家庭所占该套房屋产权份额比例为70%。
三、申购条件
(一)申请购买本市共有产权住房的家庭,应符合以下条件。
1.申请人应具有完全民事行为能力,申请家庭成员包括夫妻双方及未成年子女(未成年子女认定标准为:截至2022年9月30日(含)年龄未满18周岁的公民)。单身家庭申请购买的,申请人应当年满30周岁(截至2022年9月30日(含)年满30周岁)。
2.申请家庭应符合本市住房限购条件且家庭成员在本市均无住房。一个家庭只能购买一套共有产权住房。
(二)有以下情形之一的,不得申请购买共有产权住房。
1.申请家庭已签订住房购买合同或征收(拆迁)安置房补偿协议的。
2.申请家庭在本市有住房转出记录的。
3.有住房家庭夫妻离异后单独提出申请,申请时点距离婚年限不满三年的。
4.申请家庭有违法建设行为,申请时未将违法建筑物、构筑物或设施等拆除的。
申请家庭承租公共租赁住房、公有住房(含直管和自管公房等)后又购买共有产权住房的,应在购房合同网签前书面承诺腾退所租住房屋。
四、房源安排及配售对象
本次申购房源共计319套,将面向京籍和非京籍两部分家庭配售。具体房源安排,将结合丰台区功能定位和发展方向、项目申购登记家庭数量等因素综合确定,并在摇号公告中予以公示。本项目配售对象如下:
| Empire CMS,phome.net |
(一)京籍家庭:丰台区户籍无房家庭和在丰台区工作的本市其他区户籍无房家庭;
(二)非京籍家庭:在丰台区工作的非本市户籍无房家庭。
以上家庭“在丰台区工作”的认定标准为:申请人需在2022年9月,在北京市个人社保权益记录中所载明的缴费区为丰台区,且自2022年9月(含)起向前递推连续12个月及以上(不含补缴)在丰台区缴纳社会保险。申请人可提前登录北京市人力资源和社会保障局官网查询个人社保权益记录以确定是否符合条件。非京籍家庭申请人还需连续五年在京缴纳社保或个税,或持有有效《北京市工作居住证》。
五、资格审核
网上申购结束后,市住房城乡建设委会同公安、税务、人力社保、民政、不动产登记等部门在申购期结束后20个工作日内,对申请家庭的购房资格进行审核,区房管局组织对申请家庭在本区就业等情况进行审核。
审核工作结束后,审核结果将在北京市丰台区人民政府网站(http://www.bjft.gov.cn/ftq/zfgs/list.shtml)进行公示。经审核,申请家庭信息不符合本项目申购条件或与承诺不符的,不纳入摇号范围。
对审核结果有异议的,可以持相关证明材料到指定地点申请复核,由于个人原因信息填报错误的,复核时不予受理。具体申请复核时间及地点将通过北京市丰台区人民政府网站(http://www.bjft.gov.cn/ftq/zfgs/list.shtml)另行通知。
选房结束后,对选房家庭购房资格再次进行联网审核。凡申请家庭信息不符合本项目申购条件或与承诺不符的,不得签约,取消本项目购买资格。
六、监督管理
(一)为确保共有产权住房销售工作公开、公平、公正,共有产权住房摇号、选房过程由公证机关全程公证。区房管局指导监督开发建设单位开展摇号配售工作。
(二)申请家庭应在申购阶段如实填写家庭信息,并据实承诺符合本次申购相关条件。申请家庭须如实申报家庭情况,提交的材料应与网申家庭信息保持一致。对通过隐瞒家庭住房状况、伪造相关证明等方式,弄虚作假,骗购共有产权住房的家庭,一经查实,严格按照《北京市共有产权住房管理暂行办法》(京建法〔2017〕16号)取消其资格,禁止其十年内再次申请本市各类保障性和政策性住房;由开发企业与其解除合同、并由购房家庭承担相应的违约责任和法律责任。
(三)对有关单位和开发企业工作人员在共有产权住房资格申请、审核、公示、摇号、销售、退出等过程中,玩忽职守、滥用职权、徇私舞弊的,依法追究行政责任;构成犯罪的,移送司法机关依法追究刑事责任。
七、需要说明的问题
(一)丰台区晟泽嘉园共有产权住房项目、房源、户型及合同等信息由北京懋源新鸿房地产开发有限公司提供,仅供参考。
(二)丰台区晟泽嘉园共有产权住房项目于2021年10月取得国有建设用地使用权挂牌出让成交确认书,挂牌出让文件约定本项目为共有产权住房。本项目适用《关于印发<北京市共有产权住房规划设计宜居建设导则(试行)>的通知》(京建法〔2017〕20号)相关规定。
(三)申请人及家庭全体共同申请人名下有集体土地上合法住房又购买共有产权住房的,须承诺如涉及集体土地上房屋拆迁,在补偿安置时,不得选取房屋安置补偿方式,或将已购共有产权住房予以腾退后再选取房屋安置补偿方式。
(四)本项目签订三方合同,其中甲方(出卖方)为北京懋源新鸿房地产开发有限公司,乙方为购房人,丙方为北京市丰台区保障性住房发展有限公司。
(五)购房人取得的房屋产权性质为:“共有产权住房”,房屋再上市等后续管理按照共有产权住房相关规定执行。
(六)本项目支持公积金贷款、商业贷款、组合贷。
项目《北京市共有产权住房预售合同》已在网上公示。(合同链接:https://pan.baidu.com/s/1j0uHNXWyjai8jNw-hdpduA,提取码:1234,如对预售合同有修改意见,请于2022年9月30日下午17:00前发送至电子邮箱:ftszjy@maoyuandichan.com。最终以甲乙丙三方签订的预售合同为准。
申购地址:http://gycq.zjw.beijing.gov.cn/
申购服务热线:
北京懋源新鸿房地产开发有限公司电话010-63728980(上午9:00—下午17:00)
监督电话:010-63813373(工作日上午9:00—11:30,下午14:00—17:00)
八、特别提示
现场参观样板间须提前一天与开发企业电话预约,预约电话:010-63728980。每间隔15分钟可预约一组家庭,如家庭未预约到场将不予接待,同一时段(10分钟内)只允许一组家庭参观样板间,每组家庭参观样板间后会进行5分钟防疫消杀工作。售楼处入口处已设置测温消毒区,严格筛查并做好登记。到场人员须佩戴口罩,并进行“北京健康宝”绿码核验,且14天未到访过中高风险地区,体温检测正常;体温超过37.3°以上的人员及异常者禁止入场,入场人员需实名登记后进入售楼处,请给予配合。
北京市丰台区房屋管理局
2022年9月7日
➤晟泽嘉园共有产权住房项目信息公示
项目名称:晟泽嘉园企业名称:北京懋源新鸿房地产开发有限公司项目位置:项目位于北京市丰台区卢沟桥乡周庄子村
项目四至:东临规划七里庄中街;南临规划七里庄路;西临规划丰台站北路;北临丰华苑西街8号院
项目套数:319套户型面积:约78-80平方米两居,约88-89平方米三居
| Empire CMS,phome.net |
销售均价:含全装修费用43000元/平方米(根据具体楼层、朝向在±5%的范围内调整销售价格)
申购地址:http://gycq.zjw.beijing.gov.cn/
合同地址:https://pan.baidu.com/s/1j0uHNXWyjai8jNw-hdpduA,提取码:1234
合同反馈意见邮箱:ftszjy@maoyuandichan.com
服务热线:010-63728980(上午9:00—下午17:00)
附件:区位图、鸟瞰图
➤晟泽嘉园共有产权住房项目概况
丰台区晟泽嘉园共有产权住房项目位于北京市丰台区卢沟桥乡周庄子村,项目四至为:东临规划七里庄中街;南临规划七里庄路;西临规划丰台站北路;北临丰华苑西街8号院。
项目规划总建筑面积约5.2万平方米,其中地上建筑面积约2.7万平方米,共有产权住房住宅建筑面积约2.6万平方米,共4栋住宅楼,项目总套数319套。其中,二居室111套,建筑面积约78-80平方米;三居室208套,建筑面积约88-89平方米。含全装修费用销售均价43000元/平方米(根据具体楼层、朝向在±5%的范围内调整销售价格)。
一、交通路网
(一)公交路线:658路、77路、978路、845路、349路。
(二)交通路线:交通轨道交通:地铁9号线丰台东大街站。
自驾路线:从丰台区丰益桥出发,沿丰管路向西至东大街路,沿东大街路向北至七里庄路,再向西约1公里至项目位置即可。
二、周边配套
1.商业:华堂商场、京客隆购物中心、outlets奥特莱斯、亿客隆、苏宁、乐购、嘉诚购物广场、巴厘岛国际商务酒店、万丰世纪国际酒店、丰台区工人俱乐部、亚澜湾休闲会所等;
餐厅:万丰美食街、中华小吃博物馆、必胜客、麦当劳、京味斋、四海美食、儒宴、孔菜府等。
2.学校:首都师范大学附属丽泽中学、北京十二中、丰台六小、师范附小。
3.幼儿园:机关幼儿园、丰台一幼。
4.银行:中国银行、中国建设银行、中国农业银行、工商银行、北京银行、民生银行等。
5.邮局:邮政储蓄所。
6.医院:解放军307医院、302医院、解放军总医院、丰台医院。
7.休闲娱乐:丰台体育中心、丰台公园、万丰公园。
三、基础数据
本项目共有产权住房地上建筑面积约27598.48平方米,住宅共4栋楼,楼号分别为6-2#住宅楼、6-3#住宅楼、6-5#住宅楼、6-6#住宅楼。
6-2#住宅楼共2个单元,建筑层数为地下4层,地上8层,建筑高度为24.4米,层高均为2.9米,地上全部为共有产权住房。
6-3#住宅楼共2个单元,建筑层数为地下4层,地上18层,建筑高度为53.4米,层高均为2.9米,地上全部为共有产权住房。
6-5#住宅楼共1个单元,建筑层数为地下4层,地上27层,建筑高度为79.5米,层高均为2.9米,地上全部为共有产权住房。
6-6#住宅楼共1个单元,建筑层数为地下4层,地上27层,建筑高度为79.5米,层高均为2.9米,地上包含物业服务用房100平方米,其余全部为共有产权住房。
梯户比:6-2#住宅楼为一梯两户、6-3#住宅楼为两梯两户,6-5#住宅楼、6-6#住宅楼为两梯四户。
户型尺寸:
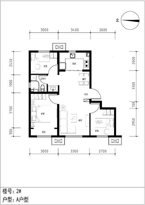
A户型(三居室):约89平方米,32户,位于2#楼一单元、二单元。窗户为塑钢材质,起居室窗洞口宽约1.8米,高约1.7米;主卧室窗洞口宽约1.5米,高约1.7米,阳台门洞口宽约2.2米,阳台门洞口高约2.2米;次卧室窗洞口宽约1.2米,高约1.4米或1.7m;厨房窗洞口宽约0.75米,高约1.4米;卫生间窗洞口(如有)宽约0.6米,高约1.4米,仅端单元卫生间设有外窗。
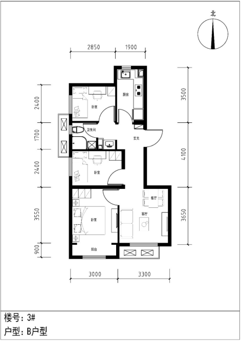
B户型(三居室):约89平方米,34户,位于3#楼一单元、二单元。窗户为塑钢材质,起居室窗洞口宽约1.8米,高约1.7米;主卧室窗洞口宽约1.5米,高约1.7米,阳台门洞口宽约2.2米,阳台门洞口高约2.2米;次卧室窗洞口宽约1.2米,高约1.4米;厨房窗洞口宽约0.75米,高约1.4米;卫生间窗洞口宽约0.6米,高约1.4米。
B户型大样:
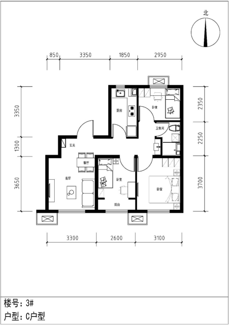
C户型(三居室):约89平方米,36户,位于3#楼一单元、二单元。窗户为塑钢材质,起居室窗洞口宽约1.8米,高约1.7米;主卧窗洞口宽约1.5米,高约1.7米;次卧室一窗洞口宽约1.5米,高约1.7米,阳台洞口宽约1.6米,高约2.2米;次卧室二窗洞口宽约1.2米,高约1.4米;厨房窗洞口宽约0.75米,高约1.4米;卫生间为暗卫。
C户型大样:
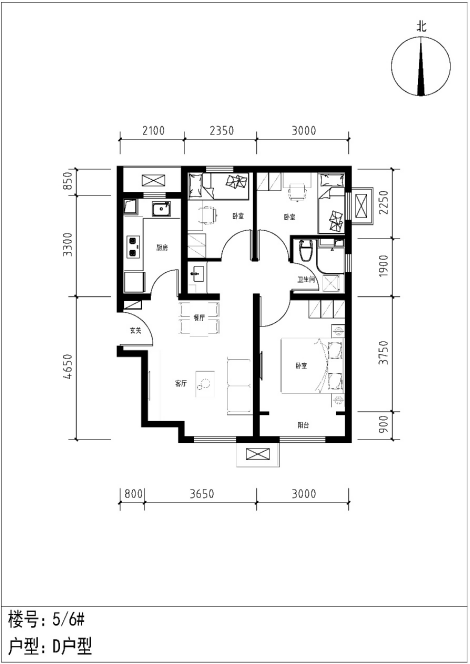
D户型(三居室):约88平方米,106户,位于5#楼、6#楼。窗户为塑钢材质,起居室窗洞口宽约1.4米,高约1.7米;主卧室内窗洞口宽约1.5米,高约1.7米,阳台洞口宽约2.2米,高约2.2米;次卧室一窗洞口宽约0.9米,高约1.4米;次卧室二窗洞口宽约0.9米,高约1.4米;厨房窗洞口宽约0.75米,高约1.4米;卫生间窗洞口宽约0.6米,高约1.4米。
D户型大样:
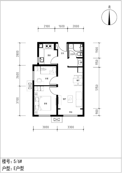
E户型(两居室):约80平方米,108户,位于5#楼、6#楼。窗户为塑钢材质,起居室窗洞口宽约1.8米,高约1.7米,阳台洞口宽约2.5米,高约2.2米;主卧室窗洞口宽约1.5米,高约1.7米;次卧室窗洞口宽约1.2米,高约1.4米;厨房窗洞口宽约0.75米,高约1.4米;卫生间为暗卫。
E户型大样:
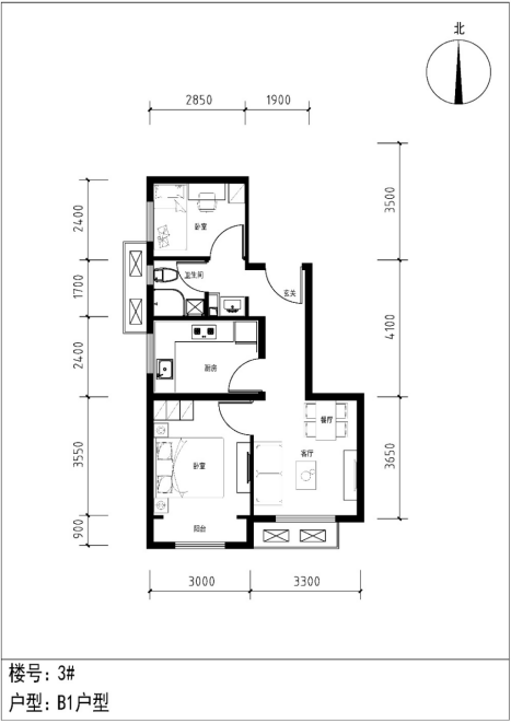
B-1户型(两居室):约78平方米,2户,位于3#楼一单元、二单元。窗户为塑钢材质,起居室窗洞口宽约1.8米,高约1.7米;主卧室窗洞口宽约1.5米,高约1.7米,阳台门洞口宽约2.2米,阳台门洞口高约2.2米;次卧室窗洞口宽约1.2米,高约1.4米;厨房窗洞口宽约1.2米,高约1.4米;卫生间窗洞口宽约0.6米,高约1.4米。
B-1户型大样:
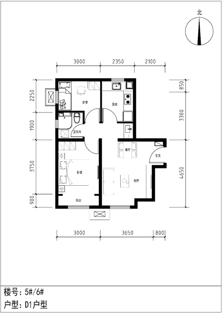
D-1户型(两居室):约78平方米,1户,位于5#楼。窗户为塑钢材质,起居室窗洞口宽约1.4米,高约1.7米;主卧室内窗洞口宽约1.5米,高约1.7米,阳台洞口宽约2.2米,高约2.2米;次卧室窗洞口宽约0.9米,高约1.4米;高约1.4米;厨房窗洞口宽约0.9米,高约1.4米;卫生间窗洞口宽约0.6米,高约1.4米。
D-1户型大样:
户型图源为:北京市丰台区人民政府
注:以上数据最终以规划及住建委等相关部门审批结果为准,如有变更我司将及时公告。
