2022世界制造业大会
展馆位置:滨湖国际会展中心登录大厅、2号馆、4号馆与7号馆之间室外农机展区
开展时间:2022年9月20日-9月23日
主办单位:工业和信息化部、科技部、商务部、国务院国资委、中国工程院、国务院发展研究中心、全国工商联、全国对外友协、中国中小企业协会、全球中小企业联盟、安徽省人民政府
承办单位:安徽省经济和信息化厅、安徽省商务厅、安徽省人民政府外事办公室(港澳办)、合肥市人民政府等
01
展会资讯
| Empire CMS,phome.net |
1
重大活动
9月19日晚 大会巡馆;9月20日上午 大会开幕式暨主旨论坛。
2
“六百”项目对接
9月19—20日 央企、民企、外企、港澳企、台企、侨企“六百”项目对接会。
3
专题活动
9月19-21日 安徽省与中央企业合作发展座谈会、工业和信息化部部属高校与安徽省产教融合交流活动、皖以现代农业合作对接会。
4
平行论坛
9月19—20日 中德新能源汽车产业发展论坛、未来产业发展论坛、人工智能创新论坛、“专精特新”中小企业发展论坛、徽商论坛5场政府主导的平行论坛;高端医疗装备创新发展论坛、产业数智创新发展论坛暨2022阿里云城市发展论坛、基础零部件创新发展论坛、食品饮料先进制造论坛等10余场市场化平行论坛。
5
展览展示
9月20—23日 展览展示包括序厅、大国制造专题、“三首”产品、“专精特新”、工业设计、工艺美术、室外农机等展区,以及3场市场化展览。其中,政府主导展览总面积为2.4万平方米,委托第三方策划运营的市场化展览面积为3.5万平方米。届时还将开通线上展厅,打造永不落幕的世界制造业大会展厅。
6
权威发布
9月20—23日 邀请国家级商协会、权威机构和国内外制造业知名企业,发布国内外制造业领域权威信息和新技术、新产品、新业态、新模式等。
02
核酸检测
会议期间,参加重要活动或进入展区,须提供24小时内核酸检测阴性证明(会议期间提供核酸检测服务)。
(文字素材来源:世界制造业大会官网)
2022中国安徽国际塑料产业博览会
展馆位置:滨湖国际会展中心6号馆
开展时间:2022年9月20日-9月22日
观众开放时间:2022年9月20日13:00-17:30、2022年9月21日-22日08:30-17:30
承办单位:安徽金世佳会展服务有限公司
中国国际机电产品交易会暨先进制造业博览会
展馆位置:滨湖国际会展中心5号馆
开展时间:2022年9月20日-9月23日
观众开放时间:2022年9月20日13:00-17:30、2022年9月21日-22日08:00-17:30、2022年9月23日08:00-14:00
主办单位:中国机电产品流通协会、安徽省机电行业协会、中国机电产品交易网
承办单位:合肥林凯文化传播有限公司
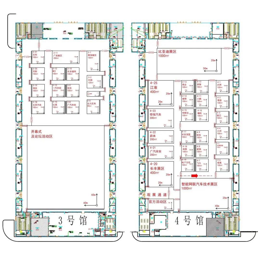
2022国际(合肥)节能与新能源汽车展
